Espace propriétaire
fr

Votre recherche

Serris (77700)

Local professionnel - 946 m²

Local d'activité / Bureau à Val d'Europe 946m² (VEFA)

2 440 680 €
Ref : 7109
Découvrir le bien

Opportunité rare au cœur du Val d'Europe

Découvrez le potentiel exceptionnel de ce bien en VEFA, idéalement situé au cœur de la zone économique dynamique de Val d'Europe. Cette structure moderne de 946 m² est pensée pour accueillir des entreprises recherchant à la fois fonctionnalité et élégance. Avec une architecture contemporaine et des matériaux de qualité, elle offre une belle visibilité depuis un axe majeur.

Activité possible : local d'activité / bureaux

Caractéristiques principales

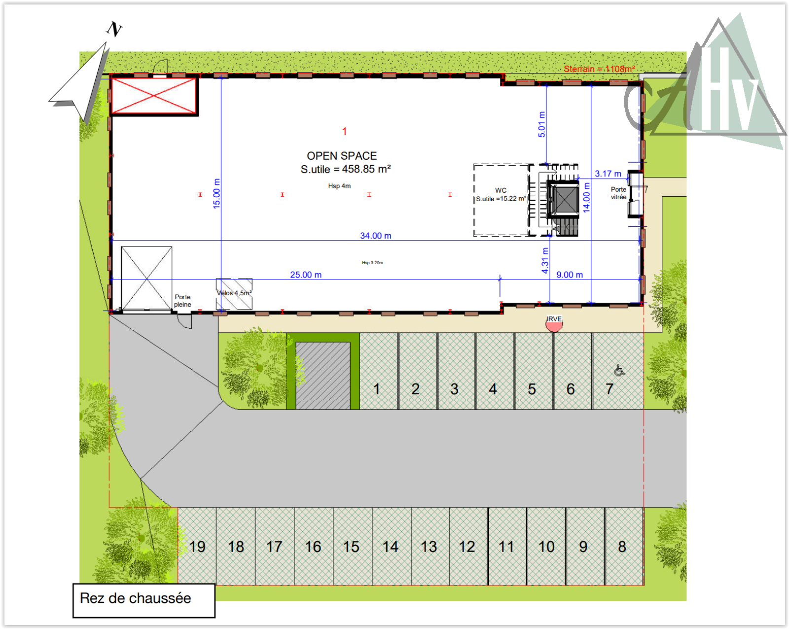
  • Rez-de-chaussée : 466 m² d'espace d'activité avec des équipements modernes (porte sectionnelle, éclairage LED, chauffage aérotherme, finition intérieure laquée blanche) permettant de répondre à des besoins opérationnels variés.
  • Étage : 480 m² dédiés aux bureaux, offrant une grande flexibilité d'aménagement, pour concevoir un espace de travail optimal et personnalisé.
  • Stationnement : 19 places de parking privatives, facilitant l'accès pour vos collaborateurs et visiteurs.

Livraison prévue pour fin 2025, avec deux options d'aménagement : choisissez entre un bâtiment livré brut pour un aménagement libre ou optez pour une conception de bureau sur mesure, adaptée à vos spécificités.

Profitez de cette opportunité unique pour implanter votre entreprise dans un secteur en pleine expansion, bénéficiant d'infrastructures variées et de la proximité avec les axes routiers immédiats (A4, RER A, TGV, et aéroport CDG à seulement 10 minutes via TGV).

TRAD_ZEPHYR_Caracteristique TRAD_ZEPHYR_Valeurs
Type de transac Local professionnel
Code postal 77700
Nombre de niveaux 2
Superficie (m²) 946
TRAD_ZEPHYR_Caracteristique TRAD_ZEPHYR_Valeurs
Mode de chauffage Aérothermique, Aérothermique
Type de chauffage Autre, Air pulsé
Format de chauffage Individuel, Individuel
Année de construction 2025
TRAD_ZEPHYR_Caracteristique TRAD_ZEPHYR_Valeurs
Prix de vente TTC honoraires inclus 2 440 680 €
Honoraires TTC à la charge acquéreur 2,56 %
Rez de chaussée
entrepot 466 m²

Finition de la partie activité RDC • Porte sectionnelle 3,00 x 3,00 m. • Eclairage LED. • Chauffage aérotherme. • Intérieur laqué blanc. • Distribution électrique sur toute la surface. • Réservation pour ascenseur • Bloc sanitaire (2u)

Etage 1
mezzanine 480 m²

Finition de la partie R+1 • Finition brute à aménager • Bloc sanitaire (2u) • Destination au permis de construire déclaré en bureaux

DPE GES
  • Commerces et santé
  • Loisirs
  • Ecoles
  • Transports
  • Pratique
Contacter pour ce bien
L'agence
Téléphone 01 60 58 90 97
Adresse
1 Rue de L'Eglise, 77480 Bray-sur-Seine

* Champ obligatoire

Les informations recueillies sur ce formulaire sont enregistrées dans un fichier informatisé par La Boite Immo agissant comme Sous-traitant du traitement pour la gestion de la clientèle/prospects de l'Agence / du Réseau qui reste Responsable du Traitement de vos Données personnelles. La base légale du traitement repose sur l'intérêt légitime de l'Agence / du Réseau. Elles sont conservées jusqu'à demande de suppression et sont destinées à l'Agence / au Réseau. Conformément à la loi « informatique et libertés », vous disposez des droits d’accès, de rectification, d’effacement, d’opposition, de limitation et de portabilité de vos données. Vous pouvez retirer votre consentement à tout moment en contactant directement l’Agence / Le Réseau. Consultez le site https://cnil.fr/fr pour plus d’informations sur vos droits. Si vous estimez, après avoir contacté l'Agence / le Réseau, que vos droits « Informatique et Libertés » ne sont pas respectés, vous pouvez adresser une réclamation à la CNIL. Nous vous informons de l’existence de la liste d'opposition au démarchage téléphonique « Bloctel », sur laquelle vous pouvez vous inscrire ici : https://www.bloctel.gouv.fr Dans le cadre de la protection des Données personnelles, nous vous invitons à ne pas inscrire de Données sensibles dans le champ de saisie libre.
Ce site est protégé par reCAPTCHA, les Politiques de Confidentialité et les Conditions d'Utilisation de Google s'appliquent.

Découvrir nos outils